杭州
邮箱
密码
验证码
用户名
确认密码
我已阅读并同意 用户协议
2020-03-30
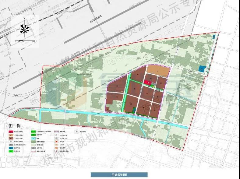
近日,《杭州市萧山区北干西单元(XSCQ12)控制性详细规划(2019年修编)》正式通过市政府批复。未来,北干西单元会如何提升改造,一起来看看!
2020-03-29
2020年,是前湾新区建设的开局之年 前湾新区将打通区域大动脉,理顺区域内交通,在高铁城际、高速公路、城市公共交通、城市道路、城市货运等方面定下2020年交通“作战图”。
2020-03-28
日前,从区交投集团了解到,今年我区将新开工彩虹大道东延工程(一期)项目,与拟建杭州中环相接,同时沟通03省道东复线和杭金衢高速萧山东互通。时代大道高架南延工程也预计开工,高架路将延伸至戴村,与拟建杭州中环南段相接。
2020-03-18
近日,杭州余杭经济技术开发区管理委员会发布了《杭州余杭经济技术开发区市民广场(含文化中心)工程项目概念性方案设计》公开征集公告。
2020-02-26
近日,杭州市规划和自然资源局对《杭州市萧山区瓜沥镇临港产业园单元(XSGL04)控制性详细规划(草案)》进行公示,公示时间自2020年2月27日至3月27日,共29天。
近日,杭州市规划和自然资源局对《杭州市萧山区瓜沥镇生态控制单元(XSGL16)、萧山东部产业园单元(XSGL17)、瓜沥东北单元(XSGL19)控制性详细规划(草案)》进行公示,公示时间自2020年2月27日至3月27日,共29天。
近日,杭州市规划和自然资源局对《杭州市萧山区瓜沥镇昭东水乡单元(XSGL12)控制性详细规划(草案)》进行公示,公示时间自2020年2月27日至3月27日,共29天。
2020-02-21
近日,杭州市规划和自然资源局对《杭州市萧山区党湾镇(XSGL20)全域控制性详细规划(草案)》进行公示,公示时间自2020年2月14日至3月14日,共29天。
2019-01-22
今年初,杭州召开的中共杭州市委十二届六次全体(扩大)会议上明确,将完成大江东产业集聚区和杭州经济技术开发区的整合。才过去10几天的时间,下沙和大江东整合就有了新进展。
2019-01-17
近日,超山奥莱选址开始公示啦!